EPro Consultants USA Inc > Residential & Mixed Use > 82 Unit Condo – Chilliwack, BC

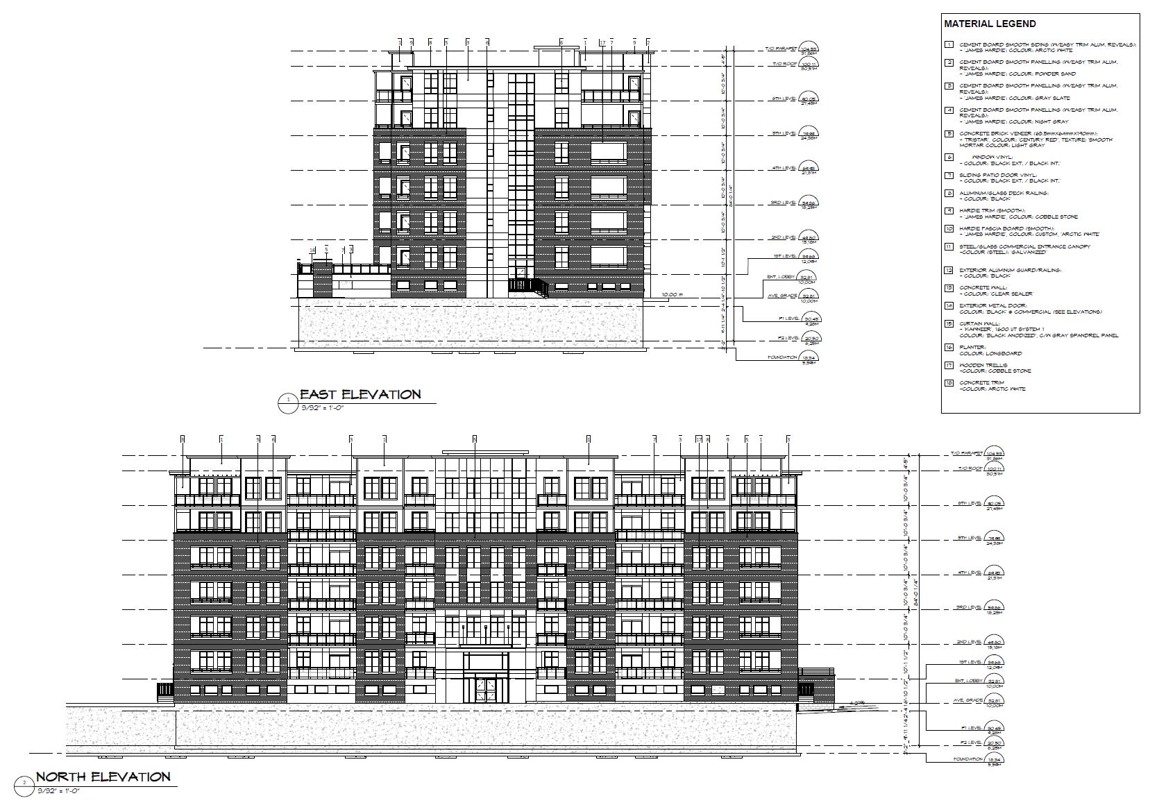
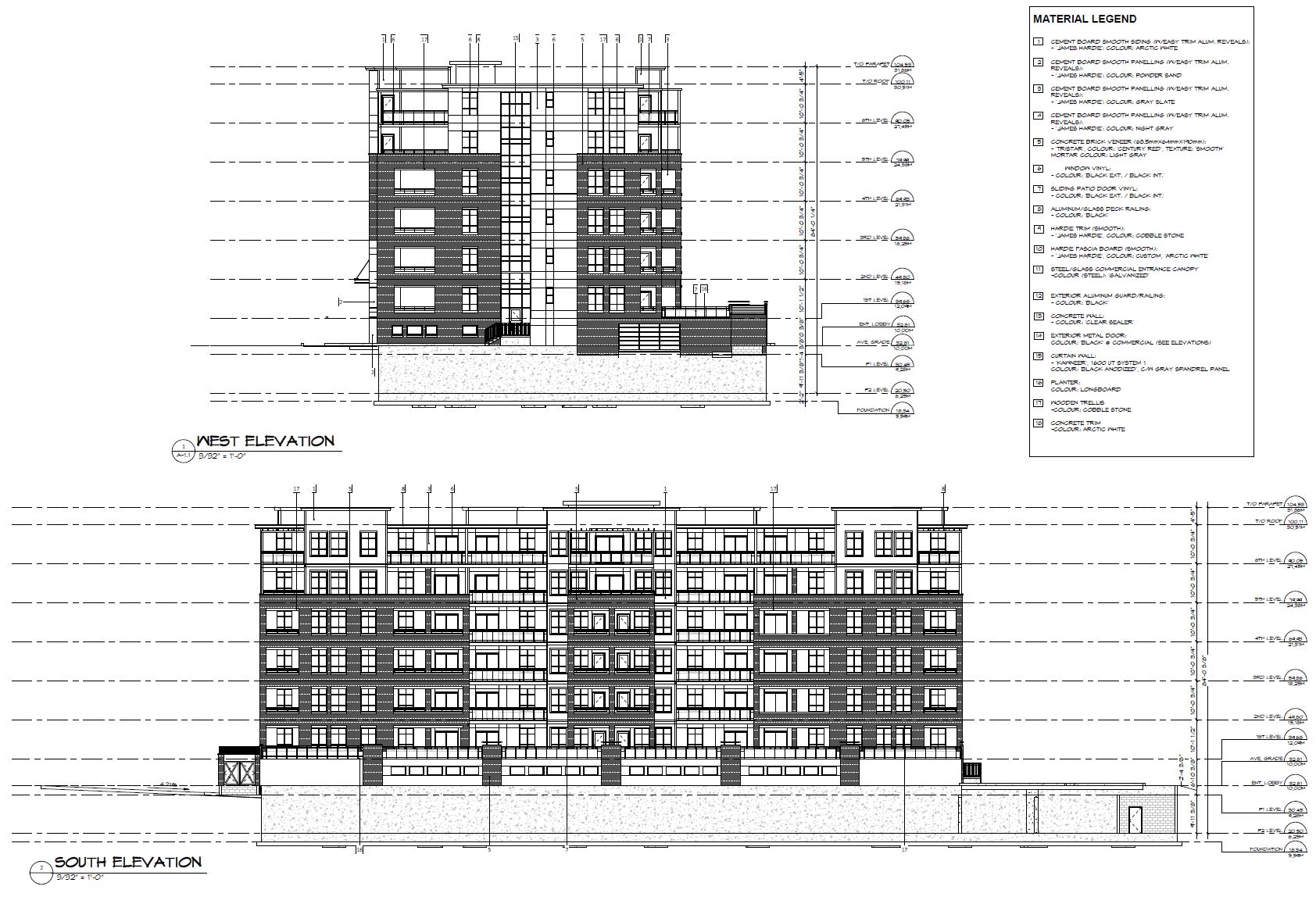
82 Unit Condo – Chilliwack, BC

Project Discipline: Mechanical, Plumbing & Electrical.

Project Description: Six-storey Condo Building Development located near Henderson Avenue in Chilliwack. The development consists of 82 units and indoor amenity space all built over two levels of underground parking.  EPro Consultants provided design services for this project which included heating, ventilation, plumbing, fire protection and electrical systems.