Project Discipline: Mechanical, Plumbing & Electrical.
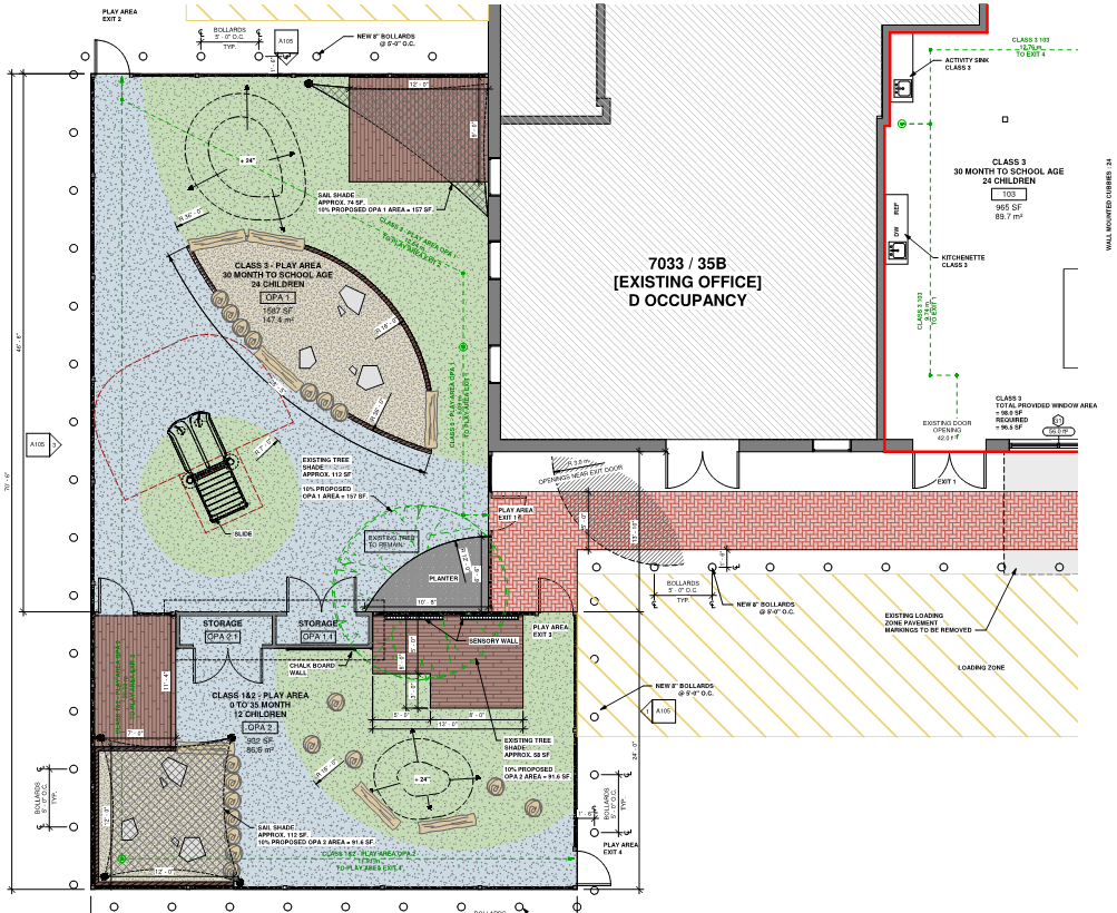
Project Description: A 2400sqft daycare for 0 to 35 month old children with 24 bed nap room was completed within tight timelines.
Project Discipline: Mechanical, Plumbing & Electrical.
Project Description: A 2400sqft daycare for 0 to 35 month old children with 24 bed nap room was completed within tight timelines.