Project Discipline: Mechanical, Plumbing & Electrical.
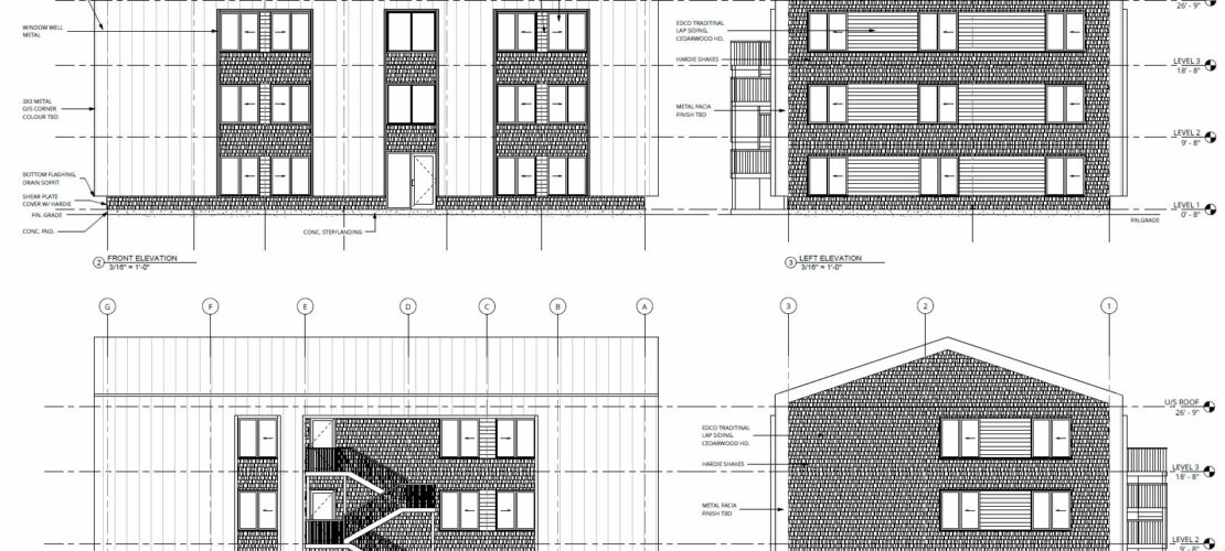
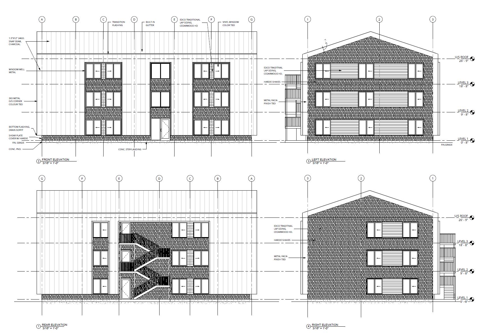
Project Description: EPro consultants partnered with Gwa’sala – ‘Nakwaxda’xw Housing Society on the Urban Village in Port Hardy, BC. The project involves three story residential buildings. Each approximately 8200 SqFt.



